2022年,我们由暖通服务商替换掉暖通经销商的身份,由暖通设计主导取代了传统的业务销售主导,想固执地潜在暖通这个圈子里,扎实做好本专业。

而2023年,我们"打脸"了!我们把手伸向了整个机电品类的设计。这还需要从我们身边的消费者的困扰说起。


装修,可以说是成年人"最好"的医丑,而装修的崩溃全在于零零散散的瞬间——

...

这些都是消费者入住后才慢慢暴露出来的问题。

沙发不够软可以换,电视不够高清可以买更高清的。

但是像用水、用电、空调、新风等隐蔽工程一旦闹心,拆了重装几乎是不可能的,补救回天乏术,最后只能将就妥协。

用得舒服、舒心、放心、省心,消费者当然也知道非常重要。可是对于既需要早期介入、又枯燥难懂的机电,消费者能怎么做?

Rev.01

消费者自己做功课

随着自媒体行业兴起,小某书、某音、某站等各大平台也出现了非常多积极分享的装修博主。

作为消费者,不禁会认为——

"既然大家都可以自学装修的功课,我怎么会不行?"

"既然有那么多前车之鉴,不正好给我提供更多的参考?"

但...

得到的答案五花八门,活跃度最高的那篇可能评论里还一群"专业人士"吵了起来。

还有一些人问"怎么买?多少钱?"且不说专业度如何,心里都怀疑是不是托,是在引流卖设备?

而好不容易刷到一篇客观中立的分享,分析专业但大家不一定看得懂,评论区少有人讨论。这时候我们又猜想,"这到底是专业大神还是运营小兵?"

搜索越多,困惑越多,最后只能——

"哎,赌一把吧,总不至于刚好轮到我翻车吧?"

"买贵的,总没错吧?"

"装修确实麻烦,但总不能不装修吧?既然分辨不出专业,那选个服务态度好的。"

当然也有自学进修"装修学科"的学霸,时间充裕且自由,学习能力强且内驱力高,学习了原理,咨询过各个品类、品牌、系列,最终走向最终的胜利了吗?

(视频来自于"三坨土"装修vlog)

很多网上的"隐蔽工程·机电专项速成班",没办法让人系统性地学以致用至自家装修中,踩了坑的热心朋友又将翻车案例发到网上,希望大家不要踩坑。

于是命运的齿轮再次转动起来——

求避坑 → 祈祷成功避坑 → 避坑失败 → 希望帮助他人避坑..

Rev.02

让室内设计师给建议

向懂得更多的人寻求建议和帮助,是每个装修人都会做的事情。但只有问对了人,建议才是有价值、有帮助的。

市面上大部分室内设计师都竭尽全力专注在更优质的空间规划、美学设计,而灯光设计、软装设计、影音室设计等等,在消费者看来也属于室内设计对吧?

但这些都不属于常规的室内设计师工作范围的范畴。

术业有专攻,同样都是室内部分的设计,面对不同品类、不同专项,虽然室内设计师都会略通一二,但从专业角度来讲,室内设计师是无法承担起所有品类的设计的。

尤其对于机电的经验,往往也是源自于自己服务过的客户的反馈,以及项目配合中积累的零散的知识点。

说个我们常遇到的案例:

不少项目设计师推荐使用电热水器来提供热水,消费者在入住后确实也获得了不少良好的热水使用体验;

然而对于多人口之家的用水大户,电热很可能是后期使用成本最高的热水供应方式。

而墙后的水管由于是针对电热水器点对点的铺设,在入住后无法改动,想改燃热或空气能已无力回天,每月电费交到苦不堪言。

除了热水,机电这一大项,还涉及配电、水管、空调、新风、除湿、排气、净水、回水、活水、排污等等。

设备的差异、安装的细节,多品类安装时的碰撞、抢位置,效果是叠加还是相克,室内设计师在机电上的知识储备确实无法全面覆盖。

回归到室内设计师的工作本职以及立场,每个室内设计师都非常希望交给消费者一个美观的作品。

比如风口要极简极窄,检修口最好不要留,吊顶设计要充满创新和创意的...

但"盲目"、"暴力"的美学设计,以及吊顶内空间的规划、占用情况,常常会对机电的落地效果产生负面影响,小则滴水、噪音,大则拆吊顶、住家和睦。

这些都是设计的时候室内设计师自身都会忽视、甚至明知道但不会告诉你的隐患所在。

Rev.03

找个有经验的安装师傅

好的安装工艺固然非常重要,有经验的安装师傅才能锦上添花。

但从一开始,安装师傅的立场和消费者、设计、销售等的立场就不一样了。

举个简单又符合人性的例子:

作为打工人,大家不免有这样的打工心理——"钱多活少"。对于师傅而言,工人、材料、时间,都是成本

在安装之前和消费者沟通需求、生活习惯、最关注的细节,都是由设计师、销售主导参与,安装师傅并没有参与这个环节,也不认为这是属于自己的工作范畴;

更多时候,安装师傅起到的是执行者的角色,考虑的也是怎么用经验、花最少的时间、用最省的材料,把施工做完。至于水管、风管怎么走,只要没人逐项要求,就是按他的经验来。

至于抢水不抢水、风口会不会被吊顶木作挡住,那都是后话,让后面施工的自己来妥协,好像先施工的就占了上风。

其次,隐蔽工程施工过程中常常交叉打架。

空调管路和新风管路打架,燃气的排气和新风系统的进气口挨着,大流量花洒出来的水稀稀拉拉不知道是因为净水流量选小还是水管管路太小...

最根本的原因之一也是干空调的是一拨人、做新风的是一拨人、卖热水的是另一拨人、卖洁具的又是另一拨人。

亲兄弟都会打架,更何况每个品类的师傅凑在一起,可能是第一次且唯一一次的配合。

大家想法不同、沟通不到位,各做各的,结果隐蔽工程里啥都有,啥都乱七八糟,冲突和问题也随之而来。

可是你说这是谁的错?没人统筹规划、没人敢拍板、没人敢担保,谁都不知道其他分项的规划,谁都不知道还有啥品类,谁也都不知道其他东西要装哪?

那改?谁来改?谁愿意改?谁花钱改?改了以后效果是否需要适当牺牲?接下来还有别的冲突吗?再有冲突又要谁改?

不改?往后每次使用难受又膈应,效果还打折,花了钱买了不开心。


这时候,消费者都陷入深深的自我怀疑:

我有房子要装修,难道是我活该花钱找罪受吗?

我该怎么办?

我能相信谁?

我是只能碰运气吗?

二三十年前,绝大多数人装修还是自己设计,自己监工。

二三十年后,住家的需求越来越精细,期望值也越来越高。大家也慢慢接受付费请设计师来设计的做法。

而请装修设计师的本质,是围绕着居住者的入住前的期待和入住后的使用需求,委托设计师运用自身的专业来帮忙规划、设计。

除了空间规划和美学设计,现代人的生活态度也发生巨大改变,那就是"悦己"——

即入住后长达十几年的实际使用体验和真实感受,而不是为了发朋友圈、发到各平台的图片。

也正是消费者的需求演变得更加具象、更加多元,使得设计行业的分工趋向于更细化、更专业

相较于过去由装修公司或者室内设计师统筹的方式,如今的装修也不应只由一个笼统的室内设计师来对应匹配装修需求,而是需要不同分项专业的设计师,结合多维的需求,提供专业、垂直的解决方案。比如精装设计、灯光设计、软装设计、收纳设计、智能化设计,等等。

而不管是大宅还是小套房,都必然有暖通(比如空调、新风、除湿、排气、地暖等)和水电(热水、净水、排污、管路、配电等)的基础功能需求,我们统称为机电。

机电设计,是为了匹配不同住家的消费者所不同的机电需求而存在,作为住家装修设计中至关重要的一部分,专业程度直接影响着居住者的住家体验。于是,这也是我们有别于2022年做了身份大调整、大转变的原因——我们希望能通过专业的、负责任的机电设计,帮消费者从整个机电板块更有效、更省心地解决他们的需求。

WHAT

什么是机电设计?

光"机电"二字就听着觉得陌生又遥远,难懂又枯燥。但我这么讲,你可能就能够很好地理解了。

当我们装修有想要的装修风格、空间布局、色彩搭配等,需要有室内设计师来规划、设计,提供解决方案(如设计图、施工图、效果图、物料清单等)来实现。

类比于室内设计,当我们对理想的室温、室内湿度、空气质量(洁净度、二氧化碳浓度控制)、生活热水、净水、直饮水、排水、排污等有需求时,那么就需要由机电设计师来深入了解居住者的需求、做规划、提供经得住推敲及规范逻辑支撑的方案设计、分析不同做法的区别和利弊、提供可落地的方案(如图纸、实测效果)等。

(此截图为业主针对自家机电需求的需求与使用习惯)

消费者常常不乏有这样的疑问——

"我找市面上的商家采购,我找的室内设计师,人家都样可以给我设计、给我出图,为什么我要费钱、大费周章请个所谓的机电设计师来帮我把控和规划、设计呢?"

WHY

为什么强调机电需要设计?

首先,机电设计师不同于商家、室内设计师,站在的是消费者的立场,起到机电顾问的角色,提供的方案和效果更是围绕着消费者的机电需求,并为结果承担责任。

十年前大家还要费尽心思介绍什么是中央空调,到如今消费者都会主动说我要中央空调、新风、净水。主流的影响和具象需求的萌生,短短几年市场上涌现了各种品牌、新技术、专利,还有所谓的独有的原装进口产品,也涌现了很多的拿消费者不懂的信息差看人下菜的"专业哄骗/诈骗师"。

举个例子:

AO史密斯电热水器很好,林内的燃气热水器挺出名,瑞美空气能热水器也不错。

但是作为特定品牌的商家,自己卖什么产品就会说自己的好,拿微弱的差异diss竞品。

一路听下来消费者都很困惑,最后被所谓的卖点忽悠、花大价钱买了可能还需要附加很多额外的条件才能实现的功能。

(此截图为某品牌热水器,以内部设置循环泵为宣传零冷水的卖点,但设备未设回水管接口,需业主自行与装修沟通回水方式;若管路铺设不合理,热水出水速度无保障,无法确保零冷水)

除了卖点的描述可能存在摸棱两可,还有一些品牌存在"真假李逵",包装成进口品牌(实则是国产),或者打着进口品牌卖的系列是国产系列,而消费者由于信息差、不懂其中的猫腻,花的是进口的价钱,买的是不对等的货。

(此截图上的两个品牌都是史密斯)

(此截图上的两款回水循环泵属于同名的进口和国产两个品牌)

就算将机电交给再信任的室内设计师,室内设计师为了给消费者一个满意的美观上的答卷,很多时候只能把重心放在自身专业的美学上;而对于机电效果,容易存在忽视,无法为机电效果拍板。即便是找个商家来配合,商家也是可能出于"配合"的心态,在效果和美观的把控上并没有太多话语权。

将机电交给机电设计师,机电设计师需要为结果负责,因此尽管业主对于生涩难懂的机电专业知识不了解,也只需要最简单的"花钱购买结果"。

其次,机电设计需要很强的专业要求。既要独立于室内设计,又要融合于室内设计。

机电设计涉及水电、暖通、热水、净水、给排水等,内容之多,涉及范围之广,直接影响到房屋的使用安全性、舒适度和节能环保性。它需要由具备设计及落地能力的机电设计师来深化设计,而非隶属于室内设计,也绝不是在图纸上出个极其简陋、粗糙的点位示意,就交给现场施工队伍现场弹性地发挥;同时,还有一大把的机电隐蔽工程都与美观落地有关,例如吊顶设计、风口设计、检修口预留、水管隐蔽连接等等。

只有功能与美观都落地,才能打造出功能性、舒适性、美观性兼具的建筑空间。

HOW

机电设计师通过做哪些工作

来保障机电效果?

首先,机电设计师需要有强硬的专业知识储备。

机电设计要求机电设计师需要具备水电、暖通、给排水、流体学、机械等专业的知识和技能。

同时,还需要深入研究不同品牌、各个品类的核心技术、设备参数、设计及安装规范、能耗分析、维保规划等。

只有具备了以上的专业知识储备,才能在当消费者做机电选择时,帮助消费者去记录过往住家存在的机电遗憾,挖掘尚未意识到的机电需求,从而进行可实际解决问题的提案;而不是"中央空调要几台?""新风需要吗?""热水肯定是燃气的好"等此类业主都很难理解、甚至需要自己学习和消化、以偏概全、错误引导的问题。

其次,机电设计师提供的解决方案应是符合业主需求、相关设计规范和装修预算的方案。

在此基础上为消费者提供品牌及系列选择,并提供客观的评价和利弊对比。

更甚,分析所提供的品类、主材的使用成本、维护周期和维护成本,确保入住后长达十几年的使用没有未知的负担。

机电设计是一门理工科设计,具备极强的设计逻辑,每一个数据均有原因,而非靠经验拍脑袋做决定。

在满足专业的前提下,再去选择品牌和系列,可以避免迷失在品牌广告、卖点和擦边宣传中。

机电设计师绝不是去批判这个产品好、那个产品差的带货销售。机电品类之多,方案可以有无数个,但只有各方面都贴合消费者需求的方案才是好的方案。

然后,机电设计师需要将所有的方案落实到施工图中。

市面上常规的操作是商家或室内设计师仅提供一次点位图,至于施工落地如何,都交给现场再来沟通。

现场的施工师傅作为执行者,一次点位图与最终落地中间还存在着大量由施工师傅决定的部分,比如管路走向、管路大小、与各完成面的衔接收边,本不需要梁上取孔的可能取了最后没用上等等,带来极大的变数和整。

无论是施工整改成本、时间成本、配合人员的积极性,都是负面影响。

我们还常常遇到这样的问题——

消费者找到空调服务商一向表现优异,新风服务商在业内口碑也屈指一算,净水品牌为国际大牌,热水也大肆宣传可以做到速热。

可是一到施工,一到交付使用,统统卡bug。

最大的原因还是交叉施工、多品类前后衔接不畅。

所以,机电设计师需要将各个品类的施工图融合到一起,做好不同品类间施工打架的排查,如果存在冲突,可以自行在机电板块内部消化;并将各个品类、与不同工种之间需要互相配合的全都在图纸上体现出来。

现场只需按图施工,做好按图施工和施工工艺检验即可,杜绝凭经验施工和个人发挥。

最后,机电设计师在各个交付节点验收效果,并做好测验记录并与消费者签字确认。

WHEN

机电设计师应该在

哪个阶段介入装修进程?

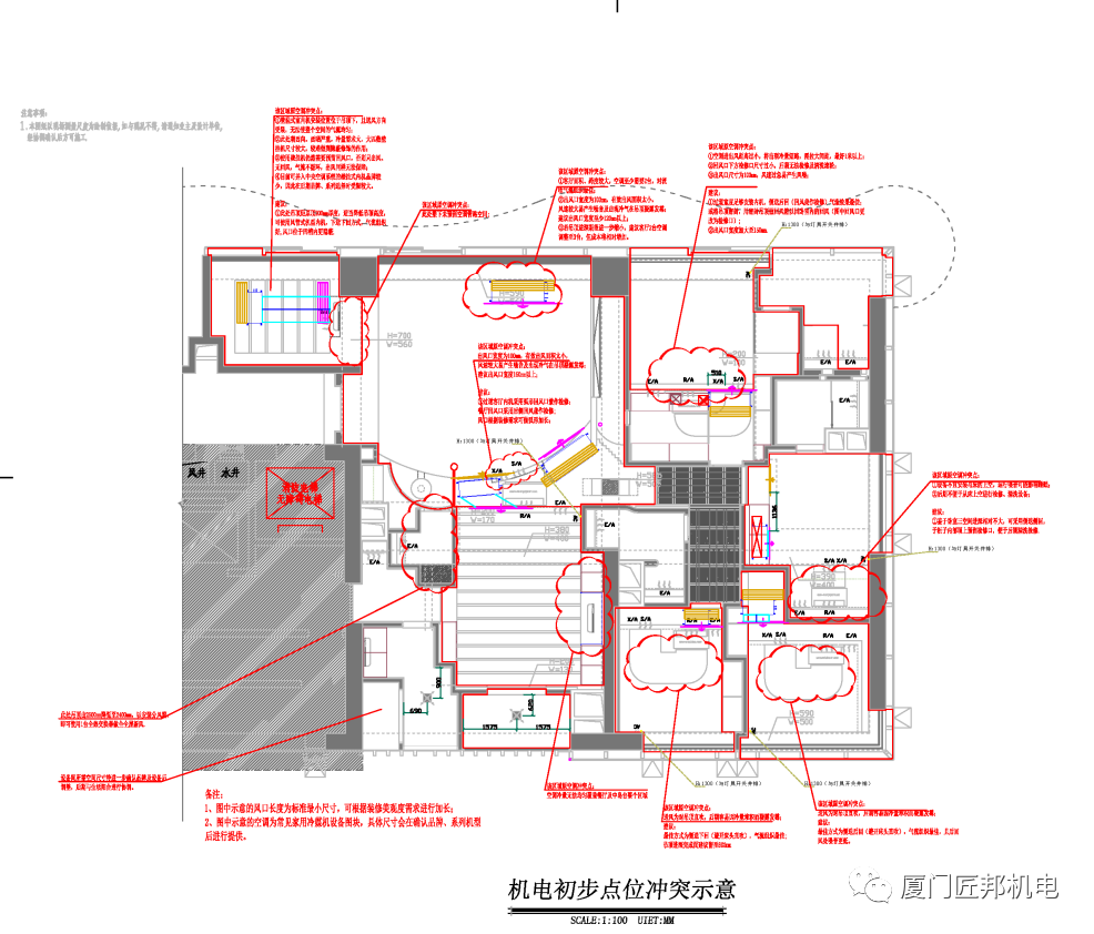
在初步的平面设计图出来后,机电设计师就需要介入了。

(机电设计介入滞后,一次点位图存在诸多机电点位冲突,需要进行大量沟通调整,费时费力)

首先机电设计师会根据空间规划与消费者进行了解后期的机电需求和使用习惯,并提供初步的机电提案;

其次,机电设计师需要与室内设计师沟通确认合适的机电点位,避免不恰当的点位带来负面影响,比如:风口对人直吹、设备噪音影响睡眠、预留的检修空间后期无法进行设备维护保养等。

同时可以避免频繁的方案调整,也避免给消费者一个没有定数的美学设计。

最后,装修的美观同样非常重要。机电设计与美学的融合上并非一板一眼。在吊顶的层级关系、风口的样式颜色、检修口的隐蔽设置、线控的排布等等,都不是独立于机电板块之中。正如住家,也不是各个板块需求拼凑而成。因此,机电设计师需要将设备的吊装位置和尺寸、管路的粗细和走向、风口所需最小面积的核算、线控可接收信号的位置排布及留线等,都需要一并融入至室内设计美观中,保障效果的同时也具备美的观赏性。


在一套房子中,最核心、最重要的主体是人。

一套房子装修,请出名的设计师、用贵的石材、上好的木饰面、配个性的家具,可以提供了很多外在的价值。

但机电宛如神经系统一般,精密排布在整个住宅的脉络中,只有机电稳定、可靠、安全、节能,才能为住家保障住家的健康和有品质的生活。

机电设计最大意义,就是为住家的住家舒适兜底;

机电设计先行、全程贯穿的意义,不仅为住家舒适兜底,也为美观兜底。